1. Accueil
  2. Nos réalisations
  3. Esquisses pour la réalisation d'une véranda Salon de Provence (13300)
Retour

Esquisses pour la réalisation d'une véranda Salon de Provence (13300)

L'entreprise Philippe Serre vous accompagne dans vos projets de construction en vous proposant des conseils et des idées dès la conception des premières esquisses.

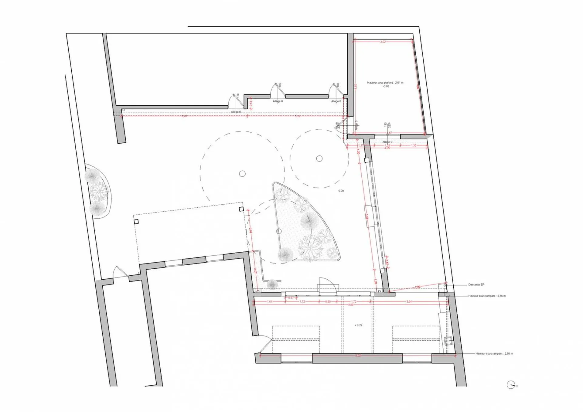
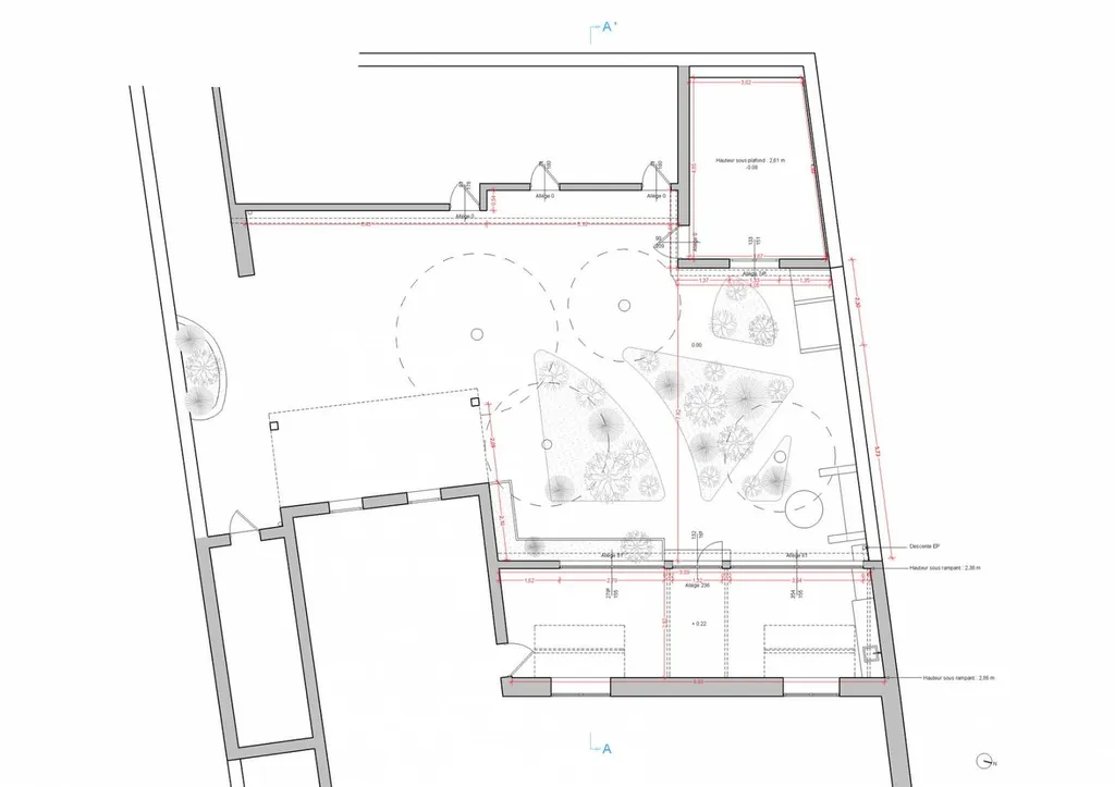
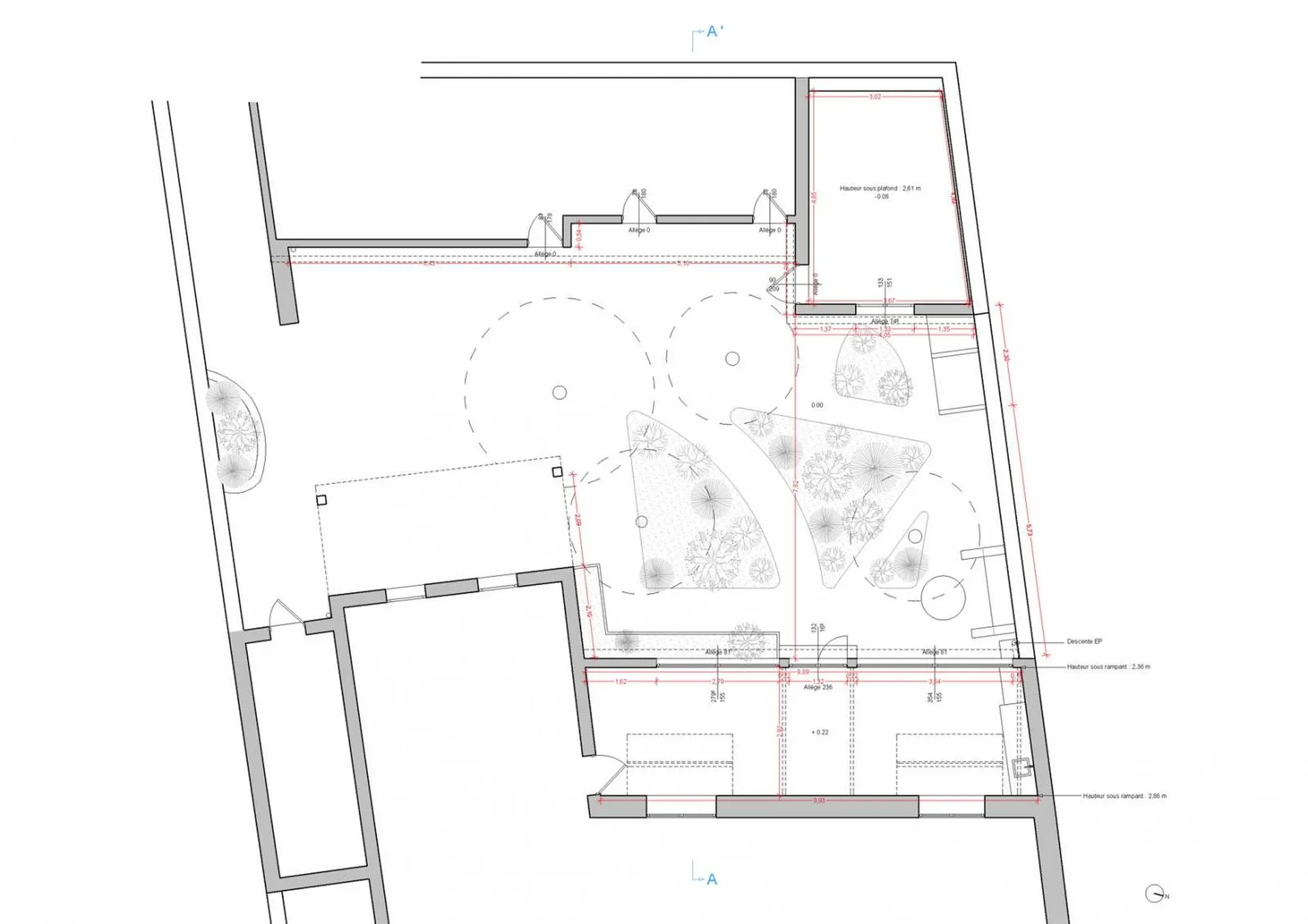
Les propriétaires d'une maison dans le centre ville de Salon de Provence ont fait appel à nos services pour la conception d'un projet de véranda en créant une extension dans la cour existante.
Le projet était de réaliser une véranda maçonnée mais une façade largement ouverte sur l'extérieur. Il était également prévu de modifier une partie de l'existant pour homogénéiser les façades sur cour.
3 versions ont été présentées aux clients avec le parti pris de créer une verrière type atelier. Une proposition de matériaux à été faite au travers des vues 3D : linteau métallique, menuiseries aluminium, poteaux en briques...

Les établissements Philippe Serre réalisent des esquisses préalables pour vous aider à vous mieux projeter, avant de vous lancer dans un quelconque projet.

L'esquisse est un dessin ou croquis réalisé par l'architecte au tout début d'un projet d'architecture. Il s'agit de la première représentation graphique du projet.

Vous habitez les alentours de Saint-Martin-de-Crau, Eguilles ou Aix-en-Provence
Contactez-nous au 04.26.85.38.95.

Les établissements Philippe Serre, basés à Salon de Provence, vous accompagnent dans la réalisation globale et personnalisée de tous vos projets, de la conception architecturale à la réalisation dans les Bouches du Rhône et les alentours.
L'entreprise répond à divers types de projets, en architecture comme en maçonnerie : elle intervient pour la conception et/ou la réalisation de travaux de rénovation de bâtisses anciennes mais propose également ses services pour des constructions neuves

Publié le : 30/11/-0001
Mis à jour le : 10/03/2026
Partager :
Nous écrire
Les champs indiqués par un astérisque (*) sont obligatoires