1. Accueil
  2. Nos réalisations
  3. Conception et réalisation d'une maison individuelle de plain pied à Vernègues (Provence)
Retour

Conception et réalisation d'une maison individuelle de plain pied à Vernègues (Provence)

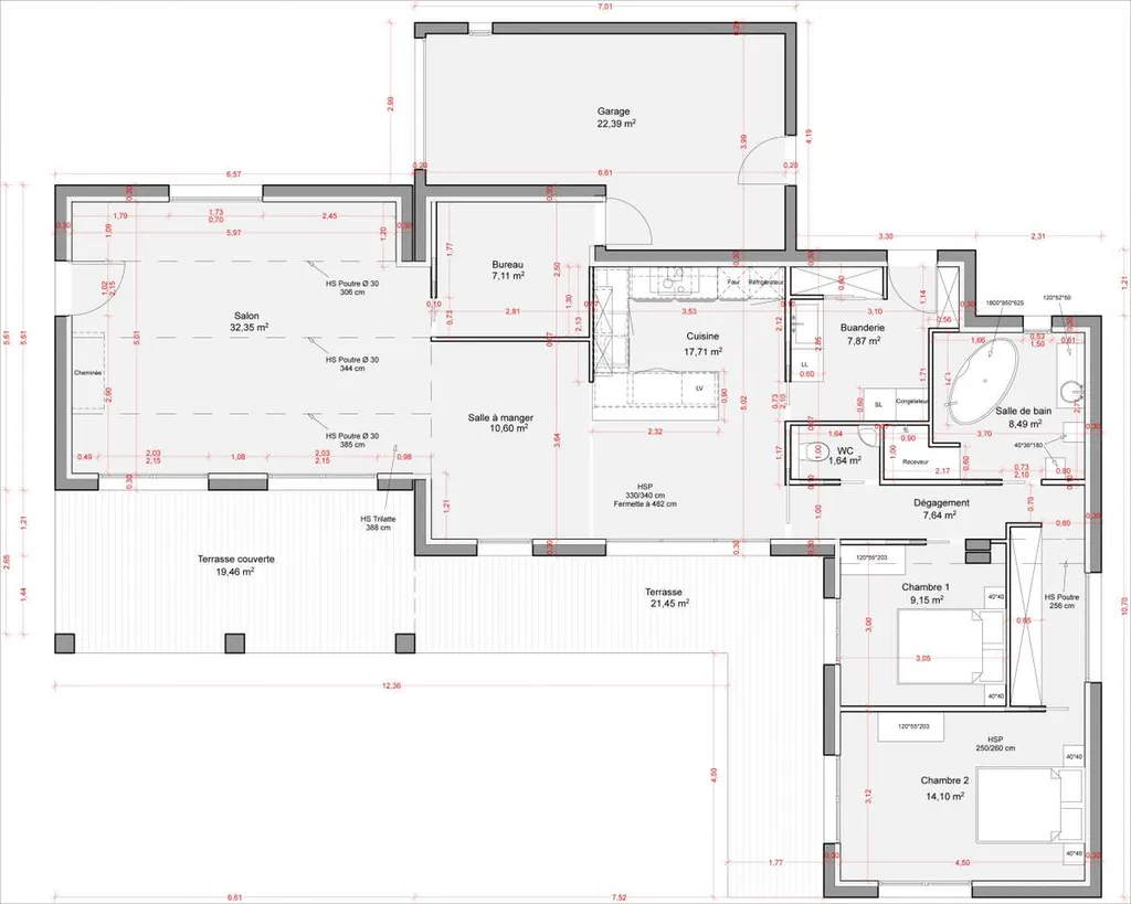
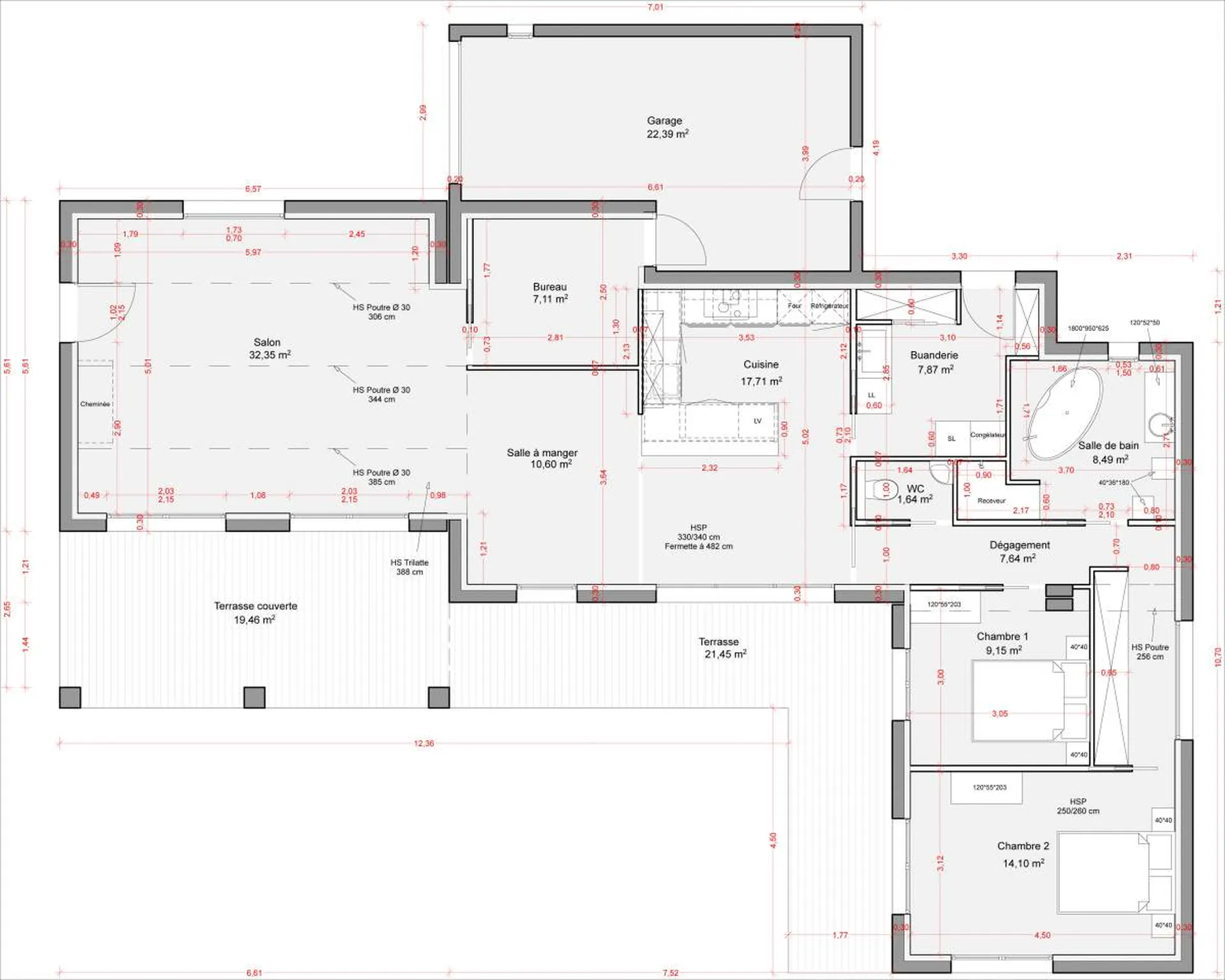
Situé sur le plateau du village de Vernègues, dans le département des Bouches-du-Rhône, le projet jouit d'un panorama exceptionnel. En accord avec la cliente, nous avons décidé d'ouvrir la maison au maximum sur l'extérieur et notamment de réaliser une grande baie vitrée de 3m20 de haut au niveau de la cuisine.

De plus, la cliente souhaitait avoir une maison de plein pied, avec de grands volumes intérieurs et une circulation très fluide entre les différentes pièces. Pour obtenir un projet dynamique à l'oeil, nous avons articulé la maison autour d'un grand volume central couvert d'une toiture à quatre pentes (cuisine et coin repas). Dans la partie à l'ouest se développe le grand salon ouvert en totalité sur le coin repas. Les plafonds de cet espace mettent en évidence les poutres rondes de la charpente et suivent les pentes du toit afin d'obtenir une grande hauteur sous-plafond. La partie nuit de l'habitation a été développée à l'Est avec un module positionné à 90° du volume central. On y retrouve les toilettes, la salle de bain, une chambre d'ami ainsi que le dressing et la chambre principale.


Les façades sud sont prolongées par des terrasses qui s'ouvrent sur le jardin.


Les ouvertures extérieures des pièces ont été placées, afin d'obtenir les plus belles vues sur le paysage.


Toutes les portes intérieures sont à galandages, ce qui permet d'avoir une circulation très fluide et harmonieuse.


Le choix des revêtements pour les sols et les mosaiques, s'est tourné vers une pierre naturelle sobre, claire et facile d'entretien : le travertin. Cela a permis à la cliente d'obtenir une bonne harmonie avec son mobilier à la fois rustique et contemporain.

Les établissements Philippe Serre peuvent vous accompagner pendant toute la durée de votre projet, de la conception à la réalisation. Nous intervenons sur Salon de Provence mais également sur Saint-Rémy-de-Provence, Eguilles, Lourmarin et leurs alentours. 

Vous avez un projet de construction d'une villa individuelle ? N'hésitez pas à nous contacter via le formulaire de contact.

Publié le : 30/11/-0001
Mis à jour le : 10/03/2026
Partager :
Nous écrire
Les champs indiqués par un astérisque (*) sont obligatoires
À découvrir également
Rénovation d'un mur de soutènement à salon-de-Provence-Livraison du mur

Rénovation d'un mur de soutènement à salon-de-Provence

Rénovation durable d’un mur de soutènement à Salon-de-Provence avec béton armé, drainage efficace et enduits traditionnels pour solidité et esthétique.
En savoir plus
Rénovation d'une salle de bain à Grans 13450

Rénovation d'une salle de bain à Grans 13450

Rénovation salle de bain à Grans : douche à l’italienne, design épuré, carrelage moderne, meuble vasque et optimisation de l’espace pour un confort optimal.
En savoir plus