1. Accueil
  2. Nos réalisations
  3. Conception d'une maison moderne avec toiture terrasse à Carry-le-Rouet
Retour

Conception d'une maison moderne avec toiture terrasse à Carry-le-Rouet

L'entreprise Philippe Serre conçoit votre maison quelque soit les contraintes topographiques de votre terrain, grâce à sa riche expérience dans le domaine de la maçonnerie et de l'architecture.

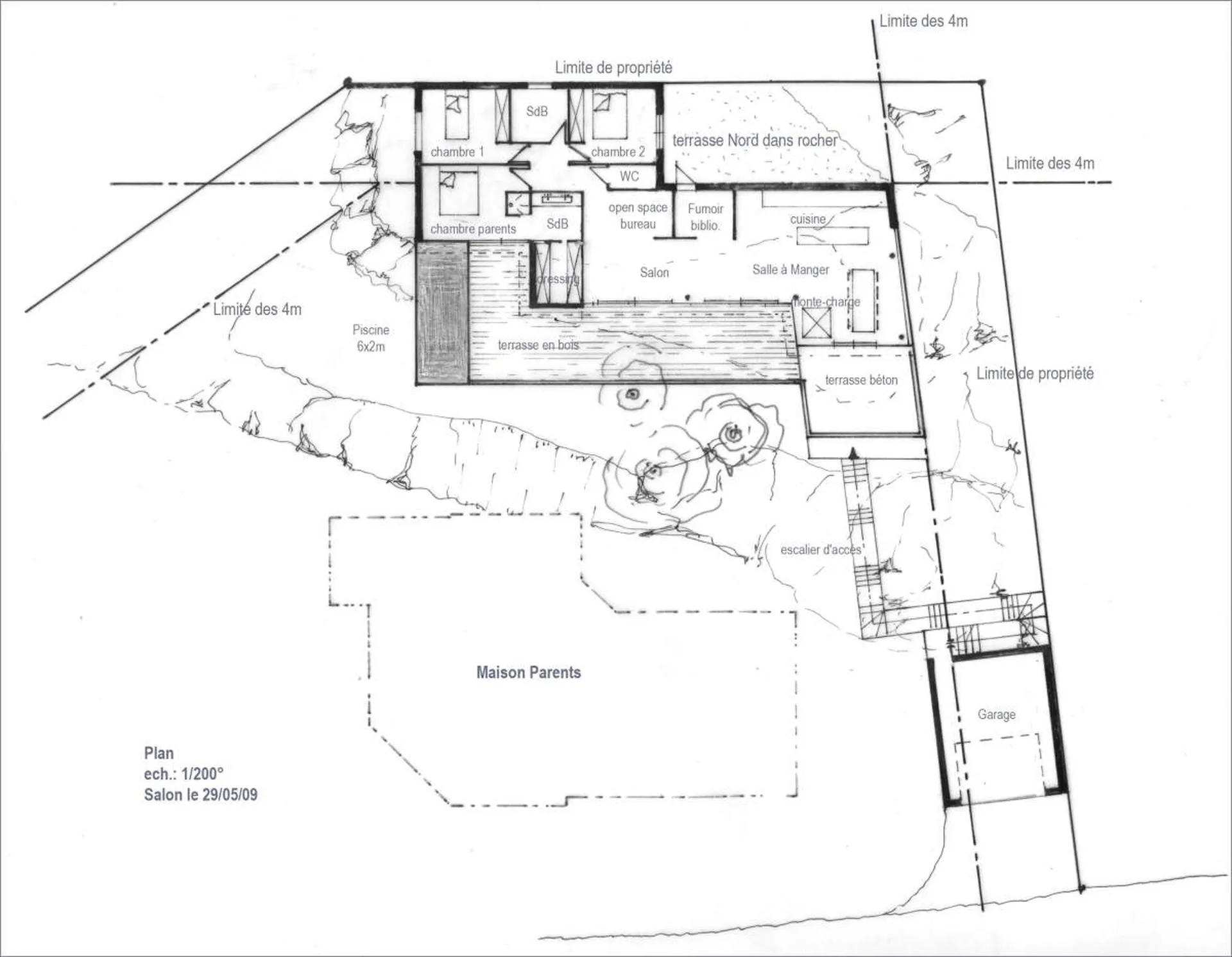
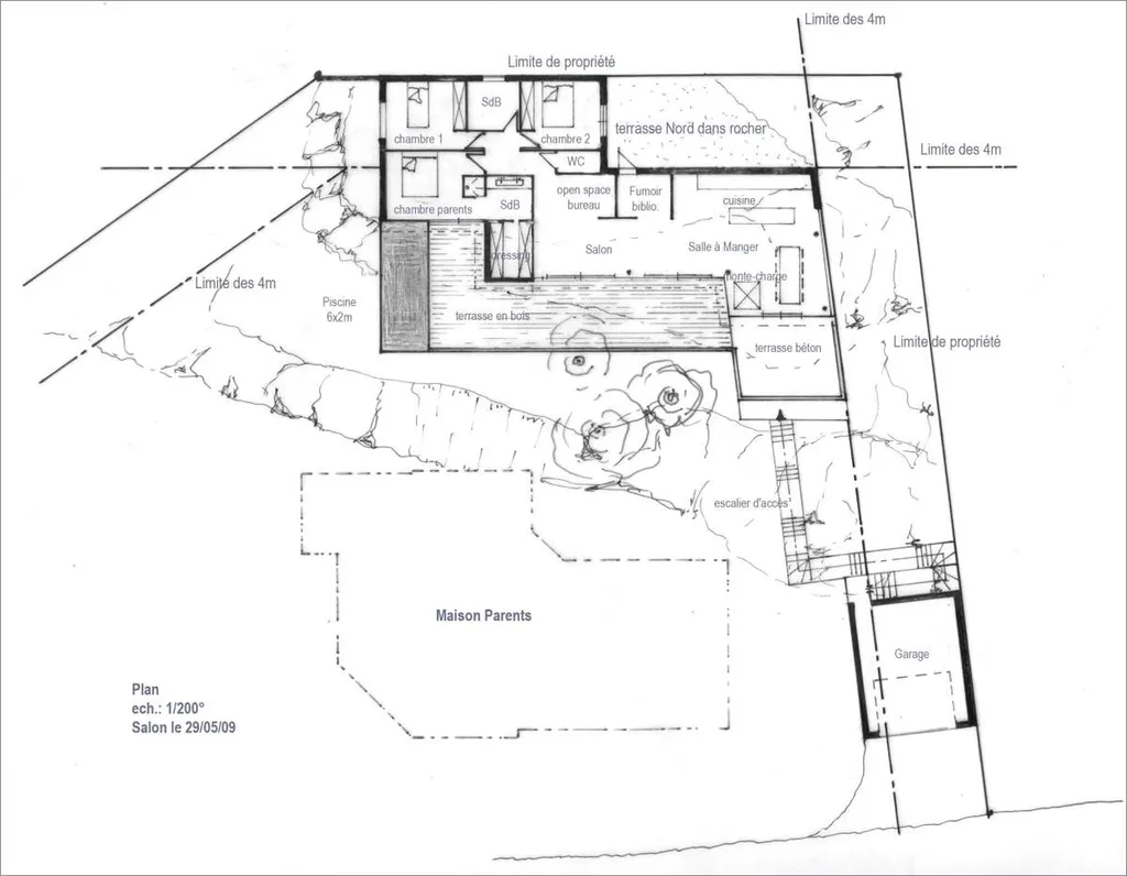
Perché au sommet d'une falaise surplombant la mer à Carry-le-Rouet, ce projet de maison moderne avec toiture terrasse fait face à de nombreuses contraintes techniques majeures. La construction doit être "nichée" sur un pic rocheux, juste au-dessus d'un tunnel ferroviaire, avec un dénivelé de 18 mètres entre la rue d'accès et la maison.

Cette configuration géographique complexe impose des défis d'ingénierie considérables, notamment en matière de terrassement. En raison de la nature du terrain, très rocheux, des méthodes spécialisées, telles que les micro charges explosives, sont nécessaires pour excaver la roche dure. De plus, la proximité d’habitations nécessite une grande prudence dans l’exécution des travaux, afin de garantir la sécurité et minimiser les nuisances.

Face à ces exigences techniques et géographiques, le projet de conception de la maison a dû être mené avec une expertise pointue. Il a fallu faire appel à des entreprises spécialisées, expertes des dernières technologies de construction, pour garantir la viabilité du projet tout en respectant les contraintes imposées.

Malgré ces défis, nous avons su proposer au client une maison moderne et fonctionnelle, parfaitement adaptée à sa famille et conçue dans le respect des meilleures pratiques de construction, offrant à la fois esthétisme et performance technique.



Nous réalisons des projets d'architecture dans les alentours mais aussi vers Gordes, Ménerbes, Cavaillon...
Pour un projet adapté à vos envies et à son environnement, contactez-nous au 04.26.85.38.95.

Publié le : 30/11/-0001
Mis à jour le : 10/03/2026
Partager :
Nous écrire
Les champs indiqués par un astérisque (*) sont obligatoires
À découvrir également
Vasque et banc en béton lissé à l'ancienne

Bétons lissés à l'ancienne

Béton lissé à l’ancienne par Philippe Serre : réalisations sur mesure et durables pour sols, escaliers, plans de travail, murs et éléments décoratifs uniques
En savoir plus
Aménagements intérieurs à proximité de Aix en Provence

Aménagements intérieurs à proximité de Aix en Provence

Aménagements intérieurs sur mesure : cheminées, escaliers, salles de bains, plans en béton ciré. Savoir-faire artisanal & design contemporain.
En savoir plus
Conception et réalisation d'un Mas provençal en pierre à Salon de Provence

Conception et réalisation d'un mas provençal en pierre à Salon de Provence

Maison alliant tradition et modernité à Salon-de-Provence : pierre calcaire locale, grandes ouvertures acier, bois apparents et béton brut pour un style unique
En savoir plus